Stylowe, nisko energetycznie Osiedle mieszkań przy ul. ks. Skorupki w Kluczborku. Zaprojektowane dla ludzi ceniących komfort życia. Inwestycja jest położona niedaleko centrum Kluczborka, otoczona zielenią. Zlokalizowana w cichej, spokojnej okolicy, jednocześnie ma łatwy dostęp komunikacji miejskiej. Mieszkania zostały wyposażone w najnowsze rozwiązania techniczne oraz praktyczny układ pomieszczeń.
Inwestycję planujemy zakończyć w IV kwartale 2024r.
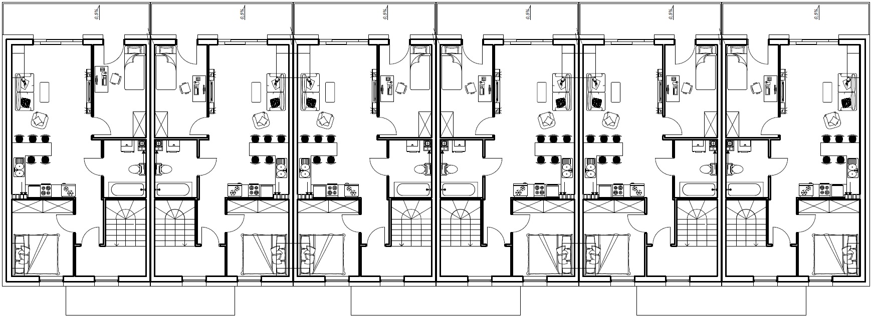
Wybierz mieszkanie:Kondygnacja: Parter
Przytulne kameralne mieszkanie w stanie deweloperskim posiada powierzchnię 59 m2, składa się z 2 pokoi oraz salonu, gdzie można wydzielić aneks kuchenny. Jest również łazienka. Mieszkanie posiada przyjemny ogród, co stanowi dodatkową przestrzeń do wypoczynku i relaksu na świeżym powietrzu. Ogród można zaaranżować według własnych preferencji, aby stworzyć swój własny mały raj.
Kondygnacja: Piętro
Przytulne i kameralne mieszkanie z balkonem o powierzchni ok. 61 m2 składa się z dwóch pokoi, salonu z aneksem kuchennym oraz łazienki. Całe wnętrze zostało zaprojektowane w taki sposób, aby stworzyć przyjemne i komfortowe miejsce do zamieszkania. Mieszkanie posiada dwa przytulne pokoje, które doskonale sprawdzą się jako sypialnie, gabinety lub przestrzenie do pracy. Każdy z pokoi jest dobrze oświetlony, istnieje również możliwość dowolnego rozmieszczenia mebli, co pozwala dostosować przestrzeń do własnych potrzeb i preferencji.
Atuty apartamentów dwupoziomowych:
- 3 pokoi,
- Mieszkania na piętrze z niewielkimi skosami,
- Gwarancja stałej ceny,
- Nasłonecznione pomieszczenia – duże przeszklenia,
- Zagospodarowany teren zewnętrzny, włącznie z podjazdem i ogrodzeniem,
- Prywatny ogród wraz z tarasem lub duży balkon,
- Ogrzewanie dwu-funkcyjnymi kotłami gazowymi,
- Dobrze izolowany budynek,
- Brak opłat czynszowych,
- Miejsce parkingowe,
- Drugie miejsce postojowe przed budynkiem,
- Pomieszczenie techniczne,
Zainteresowany ?
Zadzwoń 576 944 166
Standard wykończenia:
- Okna 3 szybowe,
- Rolety zewnętrzne sterowane elektrycznie,
- Instalacja elektryczna rozprowadzona i uzbrojona,
- Instalacja wodno-kanalizacyjna rozprowadzona,
- Ogrzewanie podłogowe,
- Ściany pomiędzy segmentami dylatowane zwiększające komfort użytkowania,
- Tynki cementowo-wapienne,
- Schody wewnątrz budynku żelbetowe wykończone,
- Taras, podjazd i ścieżki wykończone kostką brukową,
- Ocieplenie styropianem o grubości 20 cm,
- Poddasza docieplone wełną o grubości 30 cm,
- Dach przykryty dachówką ceramiczną,
